This site is protected by reCAPTCHA and the Google Privacy Policy and Terms of Service apply.
The Enclave at Chestnut Hill offers new luxury townhomes in Philadelphia ideally suited to the needs of today’s discerning homeowners. Each Chestnut Hill luxury home for sale features 4 bedrooms, 3 full and 2 half baths, a 2-car garage, a luxurious owner’s suite, a well-appointed kitchen with state-of-the-art appliances, courtyard and elevator.
Download the floor plans for The Enclave at Chestnut Hill or view the individual floor plans of each house for sale in Chestnut Hill, PA next to the model home images. If you’d like to learn more about our homes in Philadelphia reach out to our team today – we’d be happy to assist you in finding your dream newly constructed home!
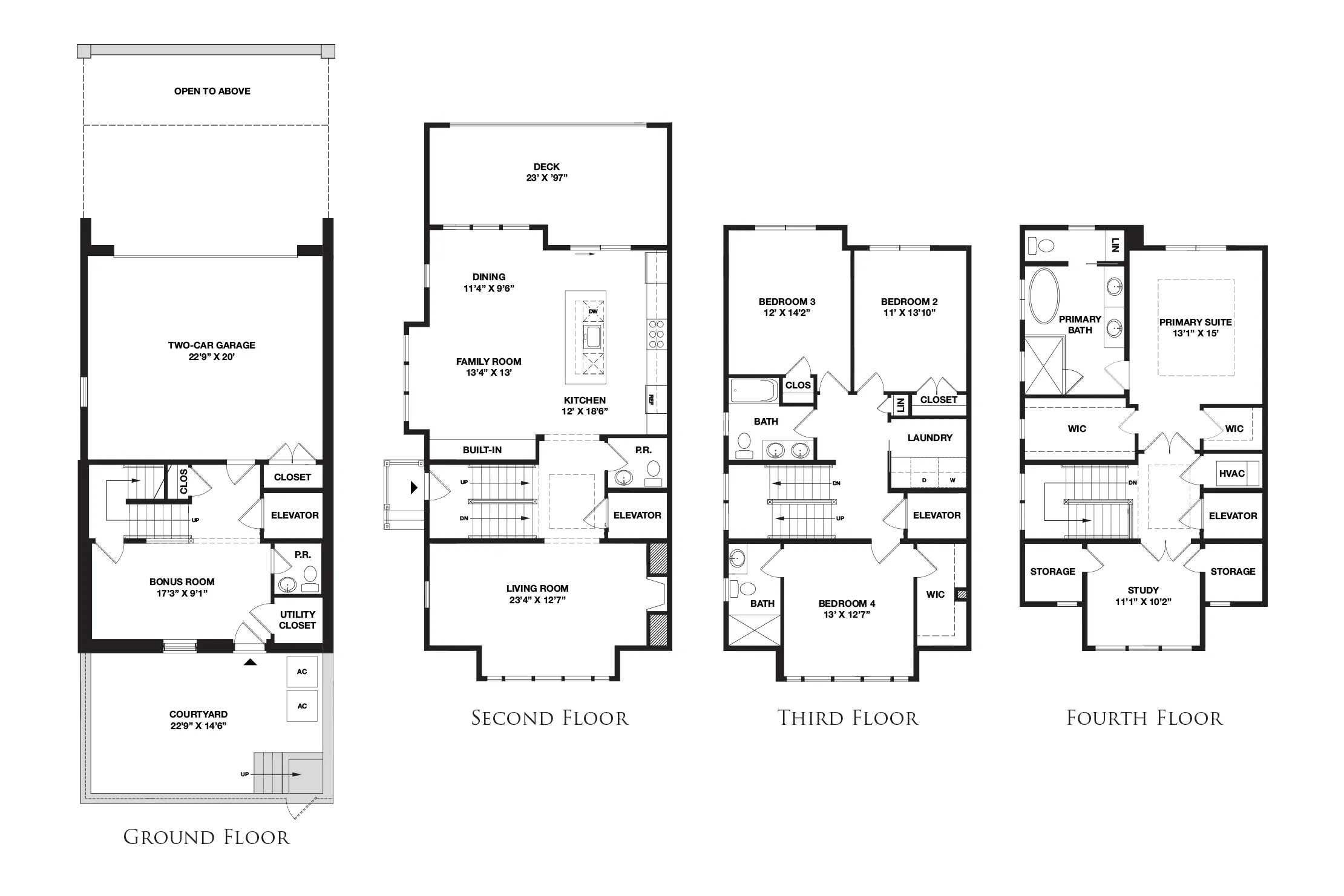
This four-level end townhome offers an expansive layout with enhanced natural light and a private side entrance. The ground floor includes a two-car garage, a bonus room with access to the courtyard—ideal as a study/office, fitness room, additional bedroom, or whatever best suits your lifestyle—and an elevator providing access to all levels. The second floor features an open-concept design with a spacious living room with a linear fireplace, a designer kitchen with top-of-the-line appliances and a center island, dining area, powder room, and access to a private deck. The third floor offers multiple bedrooms and a conveniently located laundry area. The 4th floor is dedicated to the primary suite, featuring dual walk-in closets, a private bath, and a separate study, creating a comfortable and private retreat.
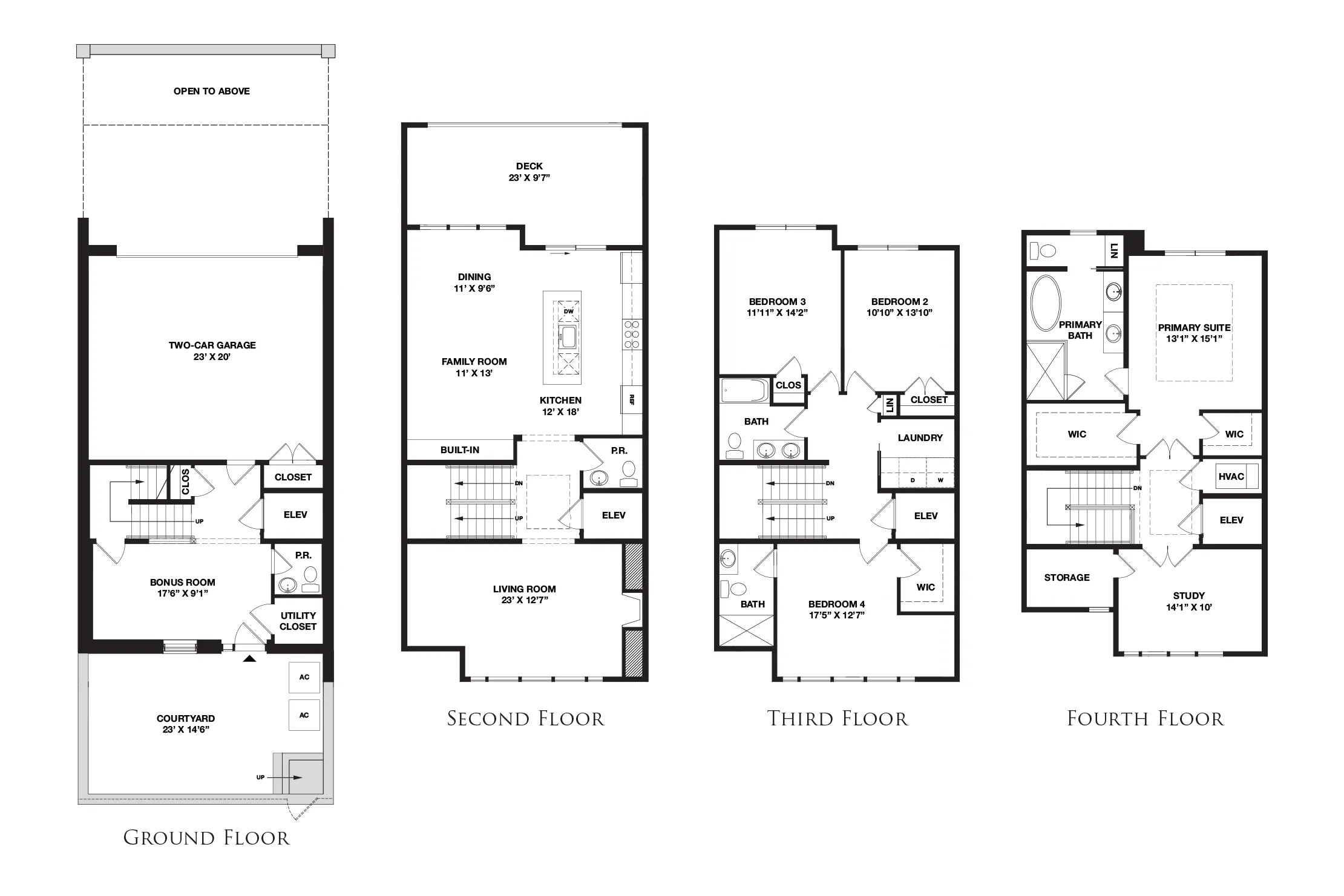
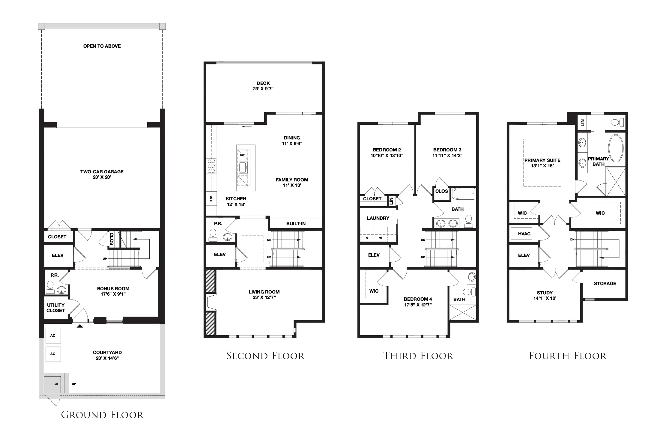
This four-level interior townhome offers a thoughtfully designed layout with flexibility and refined finishes throughout. The ground floor features a two-car garage, a bonus room with access to a private courtyard—ideal as a study/office, fitness room, additional bedroom, or whatever best suits your lifestyle—and an elevator for seamless access to all levels. The second floor showcases an open-concept living space with a spacious living room featuring a linear fireplace, a designer kitchen with top-of-the-line appliances and a large center island, a dining area, powder room, and access to a private deck. The third floor includes multiple bedrooms and a conveniently located laundry area. The 4th floor is dedicated to the primary suite, complete with dual walk-in closets, a private bath, and a separate study, offering a quiet retreat.
View the site plan for our new townhomes for sale in Philadelphia, PA.
The Enclave at Chestnut Hill is a new construction townhome opportunity in Chestnut Hill, Philadelphia. Centrally located, this distinctive townhome community is a short distance from the Chestnut Hill West Train Station, local shops and restaurants, the beautiful Morris Arboretum & Gardens, and offers easy access to popular destinations such as the Jersey Shore, Poconos, and Center City Philadelphia. With only a small number of homes available in this unique and highly desirable location, you’ll want to make your move quickly, before this opportunity is gone.
Built by an award-winning home builder with over 60 years of building experience, each of these 4-bedroom townhomes offers a well-appointed kitchen with state-of-the-art appliances, 2-car garages, elevators servicing all floors and a garden level courtyard perfect for outdoor entertaining.
Please note: The photos shown are representative of the townhomes to be built, please consult our sales team for detailed plans of the four new townhomes coming soon.
Our excellent team of licensed real estate professionals, design consultants, project managers, and site supervisors will help you through every step of the process to find, design, and build the home of your dreams at Siena Place.
Licensed Real Estate
Professional
Licensed Real Estate
Professional